Планировочное решение
Индивидуальный дизайнерский проект кухонного гарнитура – оптимальный вариант обустройства малогабаритных помещений. Если такой возможности нет, следует знать, что для узких кухонь отлично подойдет линейная модульная мебель, все элементы которой устанавливаются вдоль одной стены.
Когда кухня имеет квадратную планировку, то угловой гарнитур, у которого мойка, холодильник и плита образуют вершины рабочего треугольника, позволит создать максимально комфортные условия приготовления пищи. При этом в комнате останется достаточно свободного пространства для обустройства обеденной зоны.
Приобретение техники, интегрируемой в гарнитур, более оправдано в условиях ограниченного пространства. Поэтому сегодня интерьерные дизайнеры рекомендуют покупать врезные или накладные варочные поверхности (оптимальны двухкомфорочные модели) и мойки, а также встраиваемые посудомоечные машины и духовые шкафы (возможно с функцией микроволновой печи), которые по функционалу практически ни в чем не уступают полноразмерным аналогам.
Многофункциональные решения, вроде мультиварки, кухонного комбайна и микроволновки с грилем, позволят значительно сэкономить, а высокий и узкий холодильник, как и встроенная выдвижная вытяжка, обеспечат предельно рациональное использование пространства.
Удобная кухня: простые правила организации
Прежде чем организовывать кухонное пространство в квартире, сделайте генеральную уборку и без сожаления избавьтесь от вещей и предметов, которыми вы давно не пользовались (а значит, вряд ли воспользуетесь когда-нибудь).
Создание эргономичной кухни неотделимо от экономии места в шкафчиках и остальных системах хранения.
Особенно тщательно это следует сделать, если ваша кухня маленьких размеров. Ведь вам каждый день приходится «воевать» за дополнительный сантиметр рабочего пространства с ненужными статуэтками и вазами или баночками под продукты, которые достались в наследство еще от прабабушки. Или, может быть, у вас в ящичке хранится десяток дублирующих приспособлений: венчики, лопатки, салатные ложки и тому подобное? Не позволяйте сентиментальным чувствам брать над собой верх! Избавляться, так избавляться…
Хорошей помощью для каждой хозяйки станет использование дополнительных полок, где можно размещать специи и посуду.
Присвойте каждому предмету свою категорию.
Иными словами, предметы одной категории должны располагаться рядом: посуда с посудой, контейнеры и банки вместе, фольга, пленка для запекания и пакеты для завтраков тоже в строго определенном месте. Это поможет впоследствии сразу находить нужный предмет, а не объявлять в федеральный розыск любимую кружку или пакетик со специями…
Организация хранения кухонной утвари с использованием вместительных ящиков позволит избавить кухонное пространство от захламленности.
Распланируйте будущее расположение продуктов и кухонных приспособлений.
Например, определитесь, каким образом вы передвигаетесь по кухне в процессе готовки, чем еще занимаетесь в этом помещении. Возможно, здесь же придется «поселить» подставку для ноутбука, органайзер с канцелярскими принадлежностями или корзину с игрушками.
Обычно предметы, используемые постоянно, помещают в близкорасположенные отсеки и легкодоступные участки.
Практичный совет: храним там, где используем.
Например, ножи должны находиться рядом с разделочной доской и тогда не придется тратить лишнее время на поиски предметов необходимых здесь и сейчас.
Покупка кухонных модулей позволяет полностью перестроить систему хранения кухонных предметов под самые разнообразные потребности.
Еще один совет: если ваша кухня имеет нестандартную форму или очень скромные размеры, лучше заказать мебель, подходящую для вашего пространства, а не пытаться подобрать готовые варианты. Только в этом случае можно максимально эффективно организовать пространство кухни. И это относится не только к предметам мебели, но и к бытовым приборам.
Обустройство кухни с правильным использованием углов помещения позволяет максимально эргономично разместить там большое количество предметов.
При желании любую кухню можно сделать не только максимально удобной, но и современной и креативной. Не бойтесь оформлять кухонное пространство не так, как у всех, экспериментируйте и не сомневайтесь, результат вас удивит.
Удобно оформив кухонное пространство, вы на много лет избавите себя от проблемы поиска нужных для готовки предметов.
Хранение вещей на маленькой кухне
И для небольшого и для огромного пространства существует масса вариантов для хранения на кухне. Лучшие идеи используются дизайнерами по всему миру. Если пространство ограничено, можно и даже нужно задействовать нестандартные места для хранения:
- На дверцы шкафов можно приклеить крючки для полотенец и лёгких предметов кухонной утвари.
- Купив настенные держатели и закрепив их на стенке шкафа, можно приобрести дополнительное место для баночек со специями.
- Боковые стенки кухонной мебели стоит использовать для хранения тяжёлых предметов: кастрюль, сковородок, разделочных ножей и досок. Необходимо только подобрать надёжные крепления, и аккуратно установить, не повредив внешнего вида мебели.
- С внутренней стороны шкафов удобно подвешивать предметы, которые используются чуть реже. Это могут быть насадки для электроприборов и мерные стаканчики.
- Под навесными шкафчиками можно прикрепить полку для банок со специями, масел или поставить туда сахарницу и солонку.
- Можно привинтить к нижней части навесного ящика металлическую крышку, а затем вкрутить в неё банку и применять для сыпучих продуктов.
- Для компактного хранения ножей используют магнитный держатель. Его можно приобрести в магазине или сделать своими руками. Для этого в деревянную дощечку вклеивают мощные неодимовые магниты.
- Отличным местом для хранения чистящих средств, губок для уборки и тряпок станет шкафчик под раковиной. Губки для посуды также можно хранить в органайзере, который крепится на мойку. Это поможет защитить раковину от стекающих капель и брызг.
- Подоконник можно использовать как дополнительную рабочую поверхность или хранить там бытовые электроприборы.
- Разделочные доски лучше хранить подальше от мойки. Можно расположить их на стене при помощи крючков.
- На маленькой кухне сделать пространство максимально полезным можно, установив дополнительные шкафы, которые будут доходить до самого потолка. Вокруг дверного проёма или окна тоже можно установить высокие стеллажи. На верхних полках можно будет хранить вещи, которые редко используются. Например, праздничный набор посуды, текстиль или заготовки на зиму. Если при изначальной планировке ящики были сконструированы невысокими, можно дополнить их плетёными корзинками или симпатичными коробками.
- Хорошим решением станут встроенные в цоколь гарнитура выдвижные модули. В них можно будет хранить скалки, противни, формы и даже корм для домашнего любимца.
- Полиэтиленовые пакеты необязательно хранить у всех на виду. Можно купить для них красивую коробку или сшить специальный холщовый мешочек.
https://youtube.com/watch?v=e3zQn_ARTQs
Обладателям маленьких кухонь часто приходится выбирать между красивым и удобным интерьером. Исправить положение помогут маленькие хитрости для дома. Органайзеры своими руками весьма легко сделать: с помощью куска ткани и швейной машинки можно сшить навесные кармашки для столовых приборов. А если приклеить кусочки магнита к пластиковым баночкам получится оригинальная ёмкость для хранения специй на дверце холодильника.
Кухня
Чтобы разместить всю необходимую утварь, обладатели небольших кухонь реализуют множество интересных задумок.
Вместительная мебель
Системой хранения могут служить абсолютно все стандартные предметы обстановки: вместо стульев и табуреток подойдёт скамья с откидным сиденьем, где можно держать габаритную посуду или заготовки на зиму. Стол с выдвижными ящиками пригодится для хранения мелочей, а продуманный до мелочей кухонный гарнитур обеспечит комфортную готовку.
Шкафы до потолка
На кухне со скромным метражом важно использовать каждый сантиметр: чтобы уместить больше посуды и продуктов, дизайнеры советуют устанавливать высокие навесные шкафчики до потолка или вешать системы хранения в два ряда.
Полки над столом
Малогабаритная кухня зачастую делится на две участка (готовки и приёма пищи), но если места не хватает, стоит задействовать стену над обеденной зоной. Подойдут открытые полки и вешалки для хранения чашек и сахарницы, а также стеллажи и закрытые навесные шкафчики.
Нестандартные решения
Осмотрев свободные участки кухни и подключив свою фантазию, можно найти достаточно места для полотенец, столовых приборов и прочих необходимых на кухне вещей.
Дверцы шкафов и торец холодильника могут использоваться как дополнительные стенки для маленьких полок, фартук – для рейлинга, а различные корзинки и красивые коробки – как эстетичный, но функциональный декор.
Как правильно организовать закрытые и открытые системы хранения в кухонной зоне — описание и фото
При организации пространства на кухне важно сделать так, чтобы все гармонировало с общей стилистикой помещения. Позаботиться нужно и о разделении на зоны, поскольку если все стоит в куче, то создается ощущение хаоса и беспорядка
Не стоит оставлять место над верхними шкафами, и вместо этого лучше проектировать трехъярусный вариант под самый потолок.

Симпатично выглядит и когда закрытый тип хранения комбинируют с открытым за счет полок и навесных решений для различной утвари.

Правильно организованное хранение — гарантия опрятности и порядка даже в рабочей зоне.
Можно «подсмотреть» идею и у американцев, там принято практично использовать пространство вокруг двери, особенно если позволяет планировка.
Подойдут стеллажи или встроенные в стену полки. Отлично смотрятся закрытые и открытые варианты.

Встроить выдвижные шкафы можно прямо в стену.

Мини-кладовая в дверном проеме? Почему бы и нет, если позволяет толщина и конструкция простенков!
То же самое можно провернуть и с холодильником.

Разные мелочи можно хранить прямо над столом, закрепив там полку.

Настенные навесные полки над обеденной зоной — еще один замечательный вариант для кухни.
Не забываем и о пространстве под раковиной.

Для кухонь в стиле лофт и больших пространств подойдет преимущественно открытый, а по совместительству очень удобный финский стиль хранения.

Открытая или закрытая система хранения — исключительно дело вкуса.
В целом отлично смотрятся любые навесные решения, хранить таким образом можно даже посуду.

Актуальным вариантом остается вертикальное хранение.

Как же здорово, когда все на своих местах!
Как для лофта, так и для классики подойдут функциональные кухонные островки.

Сверху — столешница, ниже — ящики и полочки, где можно разместить много полезных предметов, скрыв их от посторонних глаз.

Запомните, не объем ящиков играет ключевую роль, а их правильное наполнение!
Туда поместится даже техника.

Достойно смотрятся и открытые варианты.

А как вам такая организация хранения? Правда, здорово смотрится?
Вообще открытые и комбинированные системы хранения прекрасно вписываются в лофт.

Для классических кухонь акцент лучше сделать на закрытый формат хранения.

Если лофт отлично сочетается с открытыми системами хранения, то классике больше к лицу закрытые фасады.
Неплохо выглядит и комбинированный вариант.

Стиль хай-тек предполагает максимальное использование пространства.

А вот с хайтеком можно смело экспериментировать.
Закрытые шкафы до потолка, выдвижные ящики, встроенная техника — все это отлично впишется в интерьер.

Скрытые места хранения
С помощью таких мест можно значительно сэкономить пространство. К примеру, можно редко используемые предметы расположить под сидением.

Практически на каждой кухне имеется свободное пространство. Часто оно находится между холодильником и стеной. Туда можно поместить вертикальную полку на колесиках. Такое приспособление может послужить отличным местом для хранения специй, бутылок, баночек и т.д.

Торцевые шкафы сегодня очень популярны среди многих хозяек. Если сделать его не слишком широким, то это будет выглядеть достаточно стильно и современно. Туда можно легко сложить моющие средства, швабры и другие принадлежности.


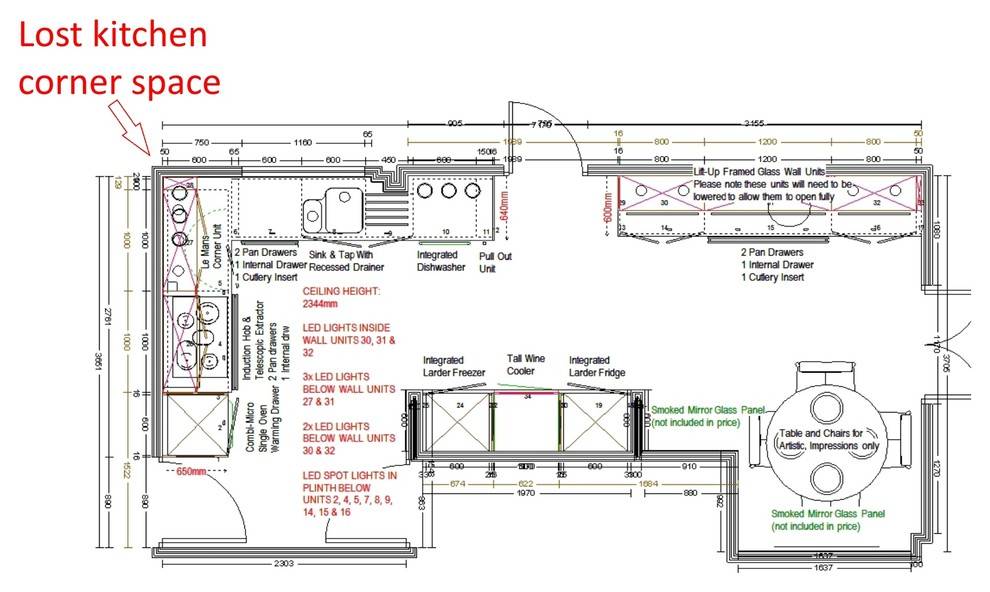
Используйте максимально эффективно угловое пространство
Угловые шкафы могут быть крайне неудобными в использовании, до них приходиться тянуться и не всегда хорошо видно, что на самом деле там лежит. В результате, из-за подобной непродуманности угловой шкаф не выполняет своих функций. Вот несколько решений, чтобы повысить коэффициент полезности этой проблемной зоны.

Прекрасным решением для угловых шкафов стали выдвижные системы Le Mans и Magic Corner. Они позволяют полностью использовать пространство углового шкафа. Вращаясь они полностью выдвигаются наружу, обеспечивая лёгкий и быстрый доступ к содержимому. Альтернативой меньшего размера являются круглый полки, которые не выдвигаются вперед, но вращаются вокруг своей оси.
Так как эти умные угловые системы расположены под рабочей поверхностью, вам не придётся нести из другого конца кухни такую тяжёлую технику, как миксер или хлебопечка.

О концепции
Несмотря на то что новый способ организации пространства – рабочий треугольник на кухне разработали в 40-е гг. XX века, сегодня он не утратил свою актуальность. В те годы на кухне готовили еду, а трапезничали в гостиной. В маленькой кухне размещали нужную для приготовления технику и мебель, которые были весьма габаритными. С внедрением концепции теснота из нее исчезла: на смену ей пришло удобство. Знакомясь с ней впервые, замечают сложности в исполнении. Когда берутся за ее воплощение, они исчезают. Рабочий треугольник на кухне бережет время и силы хозяйкам.
Основных зон на кухне 3:
- зона приготовления пищи;
- зона хранения;
- зона мойки.
Рабочий треугольник – обеспечение идеального рабочего процесса
Основные рабочие функции кухни – это готовка, мойка и хранение. Они и определяют рабочие зоны кухни, центрами которых являются, соответственно, плита, раковина и холодильник. Эти три точки являются вершинами т.н. «рабочего треугольника».
Фокус в том, чтобы расположить их не слишком далеко друг от друга – чтобы избежать лишних перемещений, и не слишком близко – чтобы не уменьшать рабочую область, например, мойки.
Желательно, чтобы суммарное расстояние между точками не превышало 6 метров. Идеальное расстояние между точками – 90 см.
Если вам кажется, что в вашей кухне никакого рабочего треугольника не получится – не беспокойтесь: его можно обустроить многими способами, с учетом ваших пожеланий и формы вашей кухни.
Детская
Родители знают множество способов, как расположить игрушки и книги в детской комнате, чтобы обстановка смотрелась аккуратнее.
Стеллажи над спальным местом
Детям удобно, когда игрушки находятся под рукой, но у каждой вещи должно быть своё место. Такая система приучает ребёнка к порядку, с чем отлично справляются открытые стеллажи. Игрушки и книжки, к которым малыш должен иметь свободный доступ, следует держать внизу, а для хранения более “взрослых” вещей обустройте полки в межпотолочном пространстве.
Шкафы в простенках
Ещё одно пустующее место в маленькой детской комнате – стены вокруг оконного проёма. Если окно обрамляют гардины, легко упустить эти участки из виду, но повесив рулонные или римские шторы, свободную площадь можно заполнить шкафчиками под книги и учебники.
Органайзер на двери
Не знаете, куда деть канцелярские принадлежности? Помогут кармашки, которые можно повесить в любое место, в том числе на дверь. Благодаря прозрачному материалу, ребёнок без труда найдёт нужный предмет.
Книжные полочки
Пустая стена в маленькой детской – настоящее расточительство. На ней можно расположить пару текстильных корзин для игрушек или закрепить шведскую стенку, но ещё полезнее – организовать библиотеку малыша. Книги, поставленные обложками к ребёнку, быстрее заинтересуют его, а также украсят комнату не хуже рисунков или постеров.
Даже в самой маленькой квартире можно найти место для всего необходимого, если воспользоваться советами профессионалов и организовать системы хранения на всех уровнях.
Обустройство места хранения
Итак, как правильно организовать хранение в кухонном помещении. Изначально, стоит вспомнить основные принципы, одним из которых является следующий — все нужное должно быть всегда на глазах.
В лучшем случае рабочая зона должна располагаться между плитой и раковиной для мытья посуды. Подходящая длина поверхности равняется примерно 90 см.
В свою очередь, предметы посуды, столовые приборы, специи и крупы должны располагаться наверху и внизу по отношению к рабочей зоне.
Чем нужнее кухонная вещь, тем ближе её располагают к функциональной поверхности. Притом, столешницу нужно освободить от лишних предметов.
Создайте архитектурные акценты на стенах и потолке
На фото хорошо видны преимущества кухни в форме буквы L, даже учитывая ее небольшую площадь. Благодаря такому же цвету и стилю, что и в гостиной, кухня выглядит как её естественное продолжение.
С помощью выступающих перегородок разной высоты на смежных стенах и потолке, дизайнеры создали подвижное и практичное пространство. Встроенная мебель выглядит очень компактно. Становится всё более популярно делать потолок визуально глубже и выразительней путём различных архитектурных деталей.
Поделитесь идеями о том, как еще можно усовершенствовать дизайн кухни с нестандартной планировкой!
Правила расстановки мебели
При планировании кухни не стоит изобретать велосипед, обратитесь к эффективному и работающему правилу рабочего треугольника. Существует 5 основных вариантов размещения кухонной мебели, в каждом из которых треугольник располагается по-разному.
Линейная. Прямой кухонный гарнитур не лучший пример эргономики. Расположение в одну линию не позволит удобно распределить рабочие зоны, поэтому лучше дополнить островом или барной стойкой и вынести одну из вершин в бок. Но если площадь помещения позволяет только однорядную планировку (например, в маленькой хрущевке), поместите раковину по центру, оставив от нее достаточное расстояние до плиты и холодильника.
Двухрядная. Часто применяется на узких кухнях и считается достаточно удобной. Эргономичный пример размещения — плита и мойка напротив холодильника. При таком раскладе вам не придется постоянно крутиться вокруг оси.
На фото кухня с заниженными верхними модулями
Угловая. Эргономику кухни реализовать на ней проще всего. В угол или около него задвигают зону мойки, по обе стороны будут располагаться остальные вершины. Чтобы было комфортнее, закажите скошенный угловой модуль.
П-образная. Максимально вместительный, функциональный вариант. По центру устанавливается раковина, по бокам холодильник и варочная поверхность. Главное, чтобы периметр рабочего треугольника не превышал 9 м.
Островная. Любая из предыдущих расстановок мебели может быть улучшена с помощью острова. Он пригодится для сокращения расстояния между вершинами в большом пространстве или для прокачки прямого гарнитура. В дополнительном модуле проще всего расположить варочную панель, она не требует проведения коммуникаций.
Особенности меблировки
Подход к организации эргономичного пространства кухни малогабаритной квартиры существенно отличается от такового в частном доме или в студии. В данном случае интерьерные дизайнеры обычно используют принцип вертикального многоярусного размещения предметов обстановки, что способствует сохранению максимального количества свободного места.
Реализация подобного замысла предполагает, что основные зоны хранения перемещаются на верхние ярусы кухонного гарнитура, в том числе, на дополнительные антресоли. При этом часть мебельной стенки под рабочей поверхностью отдается под установку встроенной техники, о чем говорилось выше.
Дабы избежать перегруженности интерьера, верхние ярусы гарнитура рекомендуется оснащать прозрачными или полупрозрачными дверцами, а также декоративной подсветкой. Такое решение визуально приподнимет потолок.
Саму мебель следует выбирать из моделей со светлыми фасадами и глянцевым покрытием. Наиболее практичными в данном случае являются фасады с ПВХ-плёнкой или пластиковым покрытием. Они стильно выглядят и легко очищаются, а также демонстрируют завидную стойкость к воздействию температуры и пара.
Для кухни с низким потолком разумно заказать не стандартный гарнитур, у которого высота верхнего яруса не превышает 70-72-х сантиметров, а аналог с увеличенными навесными шкафами. Такие модели (с ящиками высотой 90-95-сантиметров) вы можете без проблем заказать у нас.
Что предлагают дизайнеры?
Организация пространства для специалистов, занимающихся дизайном, связана с эргономичностью расположения кухонных принадлежностей.
- Вместительная кладовая. Это функциональный шкаф в виде кладовой, где на выдвигаемых полках, в корзинках, ящиках, раздвигающейся двери хранится масса полезных вещей. Конструкция ценна тем, что ее корпус вмонтирован в стену. Таким способом решается проблема экономии площади.
- Угловые ящики. Организация пространства с выгодным использованием углов комнаты позволяет рационально разместить здесь любое количество предметов. Выдвигающиеся из шкафа ящики довольно емкие. Здесь можно хранить приборы для сервировки.
- Ящики под мойкой. Незанятое пространство под мойкой можно оборудовать выдвижным ящиком, в который ставятся чистящие средства, кладутся щетки, перчатки. Установив такое приспособление однажды, можно навсегда избавиться от проблемы бесполезного поиска необходимых аксессуаров.
- Выкатывающаяся мусорная корзина. Организация пространства с помощью вместительного выдвигаемого ящика помогает спрятать не украшающие интерьер корзины с мусором и избавляет помещение от ненужных аксессуаров. В боковую часть складываются пакеты, освежители воздуха.
- Выдвигающиеся ящики для хранения жаропрочных форм. Разделенный на ячейки ящик позволяет рационально разграничить его площадь для складирования решеток, противней, форм для выпечки.
- Углубление в стене для бытовых приборов. Такая ниша освобождает поверхность столешницы от ненужных предметов. Она оборудована складной дверью, за которой удачно размещаются блендеры, кофемолки, тостеры, миксеры. Они остаются невидимыми для глаз людей, но очень удобны и всегда под рукой.
- Шкаф с органайзером. Конструкция с выдвигающимся органайзером и вместительными полочками на дверях полюбилась многими хозяйками. Такой шкаф прекрасно заменит любую кладовку. Большое количество перекладин и вращающийся элемент в виде органайзера создает порядок в хранении многих вещей, которые легко достать.
- Тумба с роликами. Такое приспособление ценно тем, что, кроме рабочей поверхности, в нее умещаются кухонные атрибуты. Тумба может выполнять функцию сервировочного стола, свободно перемещающегося по всей площади.
- Оригинальный кабинет. Небольшое углубление в стене оборудуется полками и столом для письма. В таком уютном месте можно заняться приготовлением уроков, любой письменной работой, не отвлекаясь от процедуры приготовления блюд.
- Вместительный ящик для тарелок. Глубокий, объемный и надежный ящик для посуды легко вмещает до 40 кг чистого веса, а закрепленные деревянными колышками образцы не разбиваются.
- Полки из нержавейки. Такие конструкции удачно вмещают предметы быта, декоративную мелочь, аксессуары, посуду.
Качественно выбранное освещение поможет рационально организовать пространство кухни. Использование люминесцентных ламп, подсветки шкафов и рабочей зоны наполняет помещение яркостью и равномерным светом. Хорошо обдуманное обустройство этой комнаты экономит время, нервы, силы и позволяет быстро найти любую вещь.
Правила размещения кухонной утвари
Четкая организация пространства в небольшой кухне достигается использованием многофункциональной и компактной техники. Неплохим подспорьем для любой хозяйки станут навесные полки с посудой и специями. Заметно сэкономить пространство в шкафах поможет крепление перекладины со всевозможными крючками и петлями. Надежные и легкие навесные полки вместят большое количество кухонных аксессуаров.
В основе хранения продуктов лежит тот же принцип, который применим для посуды. Здесь аналогичным способом часто используемые припасы размещаются в районе рабочей зоны, крупы засыпаются в контейнеры или банки. Растительное масло устанавливается на специальный поддон, а для хранения овощей используются плетеные корзины, деревянные ящики или специальные сумки.
Сухие цифры для правильной кухни
Эргономика на кухне формируется не только на основе правильного расположения мебели. Нужно учитывать ее габариты, высоту, длину и ширину. Весь гарнитур можно разделить на четыре зоны, каждая из которых имеет свою отметку на вертикальной линии:
- Очень низкая (0,4 м от пола). До полок и ящиков, расположенных в этой зоне, сложно и неудобно добираться. Здесь рекомендуют хранить габаритную, тяжелую утварь и технику, необходимость в которой возникает редко.
- Низкая (0,4-0,75 м). Достать что-то из ящиков, которые находятся в этой зоне тоже трудно (придется наклоняться). Места для хранения заполняют кухонной утварью (обычно кастрюлями и сковородками) и мелкой бытовой техникой (блендеры, соковыжималки, мясорубки).
- Средняя (0,75- 1,9 м). Это основная и наиболее часто используемая зона. В нее входит плита, столешница и ряд подвесных полок. На них располагают те предметы кухонной утвари, которые используются часто (посуда, столовые приборы, специи, баночки с крупами).
- Высокая (все, что выше 1,9 м). Эта “пыльная” зона находится почти под потолком. Достать что-то из верхних ниш без стремянки или стульчика невозможно. Сюда лучше складывать габаритные предметы, которые используются “сезонно”. К примеру, сушилка для фруктов с поддонами в разобранном виде. Необходимость в ней возникает только летом. Остальные три сезона она будет лежать одинокая и забытая на полке. Еще один пример — инструментарий для консервирования (ключ, банки, специальная накладка на кастрюльку для стерилизации). После окончания сезона закаток в середине осени, этот комплект можно смело задвинуть в верхний ящик.
Горизонтальные поверхности (раковина, плита, рабочая столешница) должны иметь одинаковую высоту и создавать единое пространство. Кастрюльку можно легко переместить с плиты сразу на столешницу, а грязную посуду можно сдвинуть в раковину без каких-либо препятствий на пути.




































